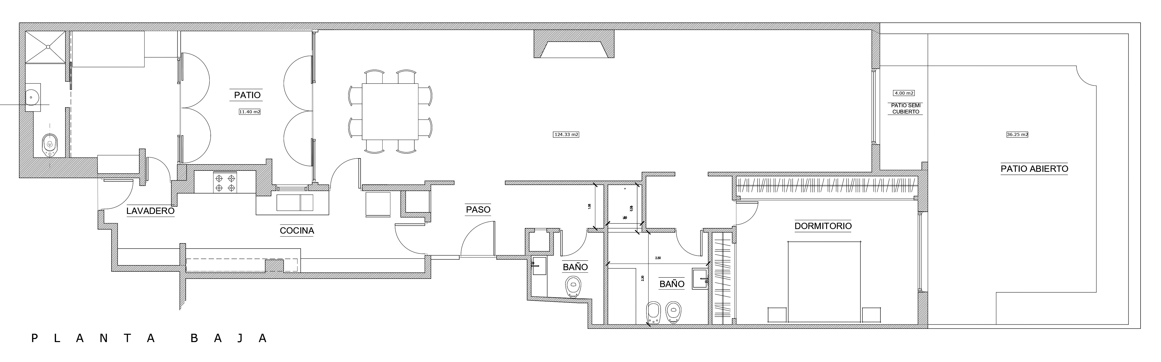
ÚNICO!! Extraordinario departamento en planta baja, en maravilloso edificio de estilo racionalista, con dos patios comunes de uso exclusivo. Tres amplísimos ambientes. Servicios centrales. Cochera, valet parking y seguridad 24 hs. DE REVISTA!!
  • Ambientes: 3 Ambientes
  • Superficie: 175,98 m2

CONSULTAR POR ESTA PROPIEDAD